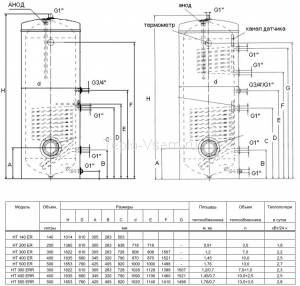
HT ER (200-500л, 1-н теплообменник)
Austria Email Теплообменник специальной конструкции обеспечивает прогрев нижней зоны; Высокоэффективная теплоизоляция из пенополиуретана; Стальная емкость, толщиной 3мм, изнутри покрыта эмалью по технологии Vacumail; Магниевый анод для защиты от электрохимической коррозии; Максимальное давление в теплообменнике: 10 бар; Максимальное давление в емкости: 6 бар; Стальная наружная оболочка покрыта эмалью по технологии «горячей сушки»; Встроенный термометр; Возможность подключения линии рециркуляции; Максимальная температура в теплообменнике: +110 °C; Максимальная температура в ёмкости: +95 °C.
Фланцевый электрический ТЭН диаметром 180мм серии R; Фланцевый трубчатый теплообменник диаметром 180мм серии RWT; Система активной защиты Correx; Термостат, ограничивающий температуру нагрева ГВС
